















建売住宅では、理想の物件が見つからない。
注文住宅のように、時間や予算はかけたくない。
そんなあなたに「戸建てリノベーション」という選択肢。
仕事や子育てに忙しい毎日でも、無駄なくスムーズに計画が進むように。
限られた時間と予算の中でも、あなたらしいプランが実現するように。
人にも環境にも優しい住まいづくりの新常識。
DUUOで、あなたの理想の住まいを。

DUUO(デューオ)は、理想の住まいを叶える
リノベーションパートナーです。

限られた予算や時間の中で、 最適なプランを提案。

専任のパートナーとして、 計画から完成まで伴走。

趣味も、仕事も、家族の時間も。 あなたらしさをかたちに。
リノベ後の住まいを、フォトリアルなCGパースですぐに確認できます。 「このデザインでいいのかな?」という不安を解消し、納得しながら理想の住まいづくりを進められます。

コーディネート感覚で選びながら、サイズや色味はあなたの生活に合わせてカスタマイズ可能。 初めてでも迷わず、忙しい中でも理想の住まいを実現できます。


































NATURAL CONSCIOUS
自然体で過ごす、 やさしい上質
玄関ドアや床材、壁面などにオークを取り入れました。温かみのある木目を中心に、適度にグレーやブラックで空間を引き締め、ナチュラルでありながら上質なコーディネートに。家族とのくつろぎを大切にする空間で穏やかな日々を過ごすことができます。

Exterior
ベージュトーンの石目調を主体としたナチュラルトーンのデザインへ刷新。ルーバー材を取り入れることで全体を引き締め、リズム感のある洗練されたモダンなデザインの外観としました。
Dining Kitchen
玄関先のダイニングは生活のハブとなるよう、吹き抜けのある開放的で明るい空間に。キッチンはリビングとダイニングを繋ぐ位置に配置し、全体を見渡しながら家族との会話が弾むレイアウトとしました。
Exterior
ベージュトーンの石目調を主体としたナチュラルトーンのデザインへ刷新。ルーバー材を取り入れることで全体を引き締め、リズム感のある洗練されたモダンなデザインの外観としました。
Dining Kitchen
玄関先のダイニングは生活のハブとなるよう、吹き抜けのある開放的で明るい空間に。キッチンはリビングとダイニングを繋ぐ位置に配置し、全体を見渡しながら家族との会話が弾むレイアウトとしました。

Deck Terrace

Dining

Kitchen

Living
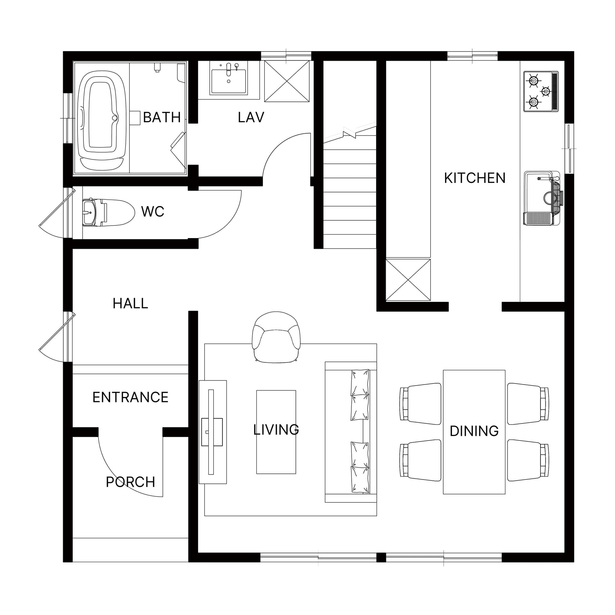
Plan
1F
PLAN
1F
2F
デザインスタイルとは
Design Styleとは、LIXIL が提案する一棟トータルコーディネートです。
トレンドを抑えた9つのコーディネートから自分好みの理想の住まいの形が見つかります。
RESIDENCIOUS
品格と洗練が調和する ラグジュアリー
インテリア、玄関、キッチンに共通で使われるウォルナットの木目が空間に深みをもたらします。高さのある建具や、スペースを贅沢に使ったキッチンや水回り、開放感のあるゆったりとしたサイズの玄関。あらゆる空間においてハイクラスを突き詰め、ラグジュアリーな時間を過ごすことができます。

Exterior
外壁材や付け庇により水平ラインを協調したデザインに刷新。バルコニー部分にガラス性のモダンパネルを採用することにより、壁面の重厚感に対して抜け感を演出しました。
Living Dining
既存の間取りを活かし、食事がより楽しめるようダイニングとキッチンを一体化しました。LDKがひと続きになることで、家族やゲストが思い思いの場所で自由に寛げる、ゆとりある空間を実現しています。
Exterior
外壁材や付け庇により水平ラインを協調したデザインに刷新。バルコニー部分にガラス性のモダンパネルを採用することにより、壁面の重厚感に対して抜け感を演出しました。
Living Dining
既存の間取りを活かし、食事がより楽しめるようダイニングとキッチンを一体化しました。LDKがひと続きになることで、家族やゲストが思い思いの場所で自由に寛げる、ゆとりある空間を実現しています。

Terrace

Dining

Living

Bedroom
Plan
1F
PLAN
1F
2F

デザインスタイルとは
Design Styleとは、LIXIL が提案する一棟トータルコーディネートです。
トレンドを抑えた9つのコーディネートから自分好みの理想の住まいの形が見つかります。
LIXILグループの総合力を活かし、中古住宅においても快適で
安全な住空間を実現することができます。
資料請求は施行予定地の工務店にて
対応させていただきます